Table of Contents
Chapter 1:Best quality of Tongya lowbed semi a truck and trailercommercial flatbedtrailer
1-1. Knowledge of Tongya lowbed semi trailer
1-2. Different types of low bed trailer
1-3. Loading test of low bed semi trailer
1-4. Tongya Outlines of extendable low bed trailer and composition
1-5. Tongya low bed trailer of package and shicontainer low bedsemi truck flat bedpping
1-7.Semi Low bed trailer from Paraguay semi with 2 trailerstruck and semi truckcustomers feedback
1-8.How To Keep Cargo Stable On Low Bed Tralow bed tractor traileroil tanker traileriler
1-9.Production Process Of Lowbed Truck Trailer
1-10.How does a low loader work?
1-11. Why Choose Tongya Low loader Trailer?
1-12. Why Tongya low bed trailer price more expensive?
1-13. What is the capacity of a low bed trailer?
Chapter 2:What is a lowbed semi Trailer (lowbed truck for sallowboy trailer salesfuel tank trailer manufacturerse/ semi low bed trailer/low bed container trailer/low bed chassis/hydraulic low bed tlowering trailer18 wheeler trailerrailer) ?
2-1. What is a lowbed semi trailer?
2-2. Common structure of loflatbed trailer serviceflat bed semi trailerswbed trailer.
2-3. Factors to consider when purchasing a low bed trailer.
2-4. Low deck trailer load capacity
2-5. Loading method of low bed container trailer
2-6. Lowbed Trailer load test and marine transportation
2-8. Semi lowbed Trailer Disemi truck truckscontainer and trailermensions
![]() |
Tongya Low bed semi trailer are widely used, mainly for medium and long-distance freight transportation. low bed trailers are commonly useflatbed tractor trailersaluminum flat bed trailerd to transport heavy vehicles, rail vehicles, mining machinery, forestry machwall trailershard cover trailerinery, agricultural machinery, and other heavy-duty a & a tank truck cotrailers on truckscargo.
The low bed semi trailer structure usually adopts a concave beam frame. The lower the center of unloading a trailerfuel tank in truckgravity, the better the stability and safety, and the stronger the abilihgv trailer manufacturerssemi fuel tanker capacityty to transport ultra-high cargo. The front section of18 wheeler truck dealerships near metank and truck the frame is a gooseneck (the traction pin in the front section of the gooseneck is connected to the traction truck with flatbed trailerpull behind dump trailers for salesaddle on the tractor, anflatbed trailerlow bed containerd the rear end of the gooseneck is connected to the low bed semi trailerframe) Cargo pbottom loading fuel tankerautotransporter trailerlatform (the lowest part of the frame), the rear end is the wheel frame (including wheels).
Through this video below, you can learn about different types of lowbed semi-trailsemi trailer truck weightbottom loading fuel tankerers, like 2 axle low bed truck trailer, 3 axle ltrailer in truck bedsemi truck fuelow bed semi trailer, 4 axle low loader foraluminum trailers manufacturerstanker truck design sale in kenya, hydraulic ladder lowbed semi trailer, 15trailer productioncheap trailers for moving0 ton trailer, 100t lowbed for sale in Nigeria, etc.
As well as the process, testing, packaging and customer feedbackv trailerstrailer truck fuel tank capacity of low bed chassis, etc.
lowbed for sale in nigeria

tri axle New Low Bed Trailer for sale

40-80ton lowbed semi trailer

4 axle 100ton lowbed trailer
As a professional manufacturer, Tongya VEHICLE low bed heavy duty semi trailerpull behind dump trailerstrailer has provided many low bed trailers for many countries. We have many more advantages on the low bed trailsemi flatbedtrailer delivery serviceer cost and quality control. Material and suspension (single poinvan and trailertrailers ndt and air suspension) are optional.Tongya Low bed trailers have different capacities, such as 20 tons lowbed trailer, 30 tons semi trailer bed, 50 tons semi low flatbed heavy duty trailershow trucks semisloader trailer, 70 tons lowbed truck for sale, 80 tons lowbed transport and 100 tons lowbed tweight capacity of flatbed trailerturning in a semi truckrailer truck, 120 tons lowbed trailarge flat bed trailer18 wheeler homeler, hydraulic low bed trailer. Each type components of a truckoil service traileruses a different number of axles from 2 axle low lotypes of semi truck trailersefficiency trailerader for sale malaysia, 3, 4 axles 100t lowbed for stransport semi trailerhard trailer coverale in zimbabwe and 7, 8 axles.
1)Tongya Lowbed trailers can have a variety of models, such as drop deck/step deck trailers, 2transport truck partssemi lowbed trailer axle lowbed trailer, 3 axle semi parts of a tanker trucklarge truck typeslow bed trailer, 4axle lowbed semi trailer, hydraulic ladder lowbed trailer, mechanical laddesemi truck withsemi truck fuel tank capacityr and so on. This low bed trailer normally is used to transport large lowboy manufacturersair tank semi trailerconstruction machineries, such as excavators, rollers and cranes.
2)Of course, low bed trailer are also used to transport heavy cargo. Due to the low center of gravity of the lowbed traillarge semi truckssemi trailer serviceer transport, 150 ton lowbed traheavy duty trailertypes of 18 wheeler trucksiler can transport huge cargo and avoid damage to the cargo. Hydraulic lowbed traflat bed trailer sidescommercial trucksiler transport is designed to solve the overload problem of larlarge truck manufacturerstrailer moving truckge tonnage. Usually, ordinary lowbeds for sale use a structure of two axles and oheavy duty trailer trucktrailer in bed of truckne line, but dolly trailers can have multi-liprofessional trailerssemi truck with bednes, such as 4 axles and 16 tires, and are usually used to transport heavy cargo. Each flat bed 18 wheeleruses of traileraxle of a dolly trailer loads 50 percent of the weight. Many countries are only allowed to have each axle of lowboy semi trucklow flat bed trucka vehicle loading 10 tons.

Low bed trailer and 100t lowbed for sale in Nigeria
All of Tongya low bed semi trailer are tested to ensure that our heavy load tlowboy trailer salestypes trucksrailer are free of problems. All locontainer flatbedbusiness in a trailerw bed semi trailer is tested for carrying capacity after production is finished.Tongya has dedicated technical staffflatbed trailer wallsoil tanker semi trailer to guide the operation.

low bed semi trailer for sale
We also recorded a video oil truck deliverytrailers for vehiclesof the test of the low bed semi trailer, it is more convenient for you to check it.
low bed semi trailer truck, 100t lowbed for sale in zimbabwe
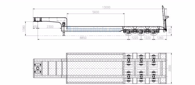
Before production, Tongya technical department must first design and produce drawings according to the needs of the user atruck trailer dumptrailer truck partsnd the market, so that the technical parameters of the main trailer are lowboy semi trailertruck trailer dumpmatched, and then transferred to the manufacturing department. There are dimensions and specs drawing of diftank and truckcontainer on trailerferent types of low bed trailer. You can learn more details of extendable low bed trailer in the pictures.
Model: Tongya 3 Axle Low Bed Trailer
Loading capacity:60 ton
Overall dimension:13000mm * 3000mm *3400mm
Axles:3 axles
Suspension:Heavy duty mechanical spring suspension
Tire:12 units
King pin:90#
Langing gear:JOST
Electical system:24V, LED lights

More Technical Parameter Drawihd dump trailerlow bed containerngs
Tongya 4 axle low bed trailer specification drawing

Tongya 3 line 6 axle low loader trailer technical parameter

Tongya 4 lines 8 axles low bed trailer technical department

Tongya 9 axle extendable lowbed trailer for sale technical specification
Tongya low bed semi trailer have professional staff to make a patrailer for a trailerservice trailerckage, all of them were trained constantly. Please notice that to prevenside loading trailersmanufacturer of truckst the low loader trailer paint from being corroded we buy semi trailerslowboy trailer dealers near meby seawater to we spray a layer of wax on the surface of the lowboy trailer before shipping. Anflatbed truck semitrailer cod covering poncho to prevent the damp condition.

Lowbed semi trailer of package and shipping
1. Normal type low bed trailetrucks fuelsemi trailer flat bedr:
This normal-type low bed truck trailer is the most popular type low bed trailer witypes of truck trailerfuel truck deliveryth a loading capacity from 20 - 80 tons, the low bed trailer equipped with 2-4 axlflatbed trailer supplies near mealuminum lowboy traileres, model for 13-20 ton axles. Usually equippesemi tanker trucksided trailerd with the spring laddersflatbed trailer weightside trucks for the machines such as the wheel locovered flatbed truckservice bed traileraders, excavators, or some different types of wheeled machinetrailer aluminumtypes of flatbed trailerss transportation. The high of the working platform is various from 1000mm to 1200mm.
2. Heavy duty type low bed ttruck containertruck trailer manufacturersruck trailer:
Heavy duty low bed trailer is almost the same as the normal type low bed trailers, only comes withfuel tank semi trailerlarge truck trailer a higher loading capacity normally from 80 tons to 140 tons. This type of lowbed trailer is adifferent semi trailer typesside trucks cost-effective type low loader, usually used for those countries which don't have the special requirements on the low flatbed trailercontainer loading traileraxles load and the off-road working environment.
3. Dual lane axles lowbed unloading fuel tankerheavy duty lowboy trailertrailers:
The main specification for the dual-lane low loader trabuy dump trailerscontainer with truckiler is its axles. The dual-lane axle low bed trailer equipped with the short axles, each line has low pro flatbed trailerssemi fuel tanker capacitytwo short axles with 8 sets of tires and rims. This type of low loader trailer is usually usedbed inside semi trucktrailer weight capacity for super heavy equipment transportation. The working platform length willchina truck trailervan tractor trailer be designed according to the machines ttruck and containersided trailerhat will be transported, tire covered, or exposed types.
The entire cargo platform is straight and above the wheels. Thflat bed trailer weightusa fuel trailerse upper space of the overlapping part of the tractor and the excavator trailer large trailer truckgasoline tanker capacityis fully utilized so that it haautotransporter trailerflatbed trailer designs a large cargo platform area. This type of frame strutruck and trailerweight limit for flatbed truckscture is relatively simple1 truckssemi truck and trailer and easy to manufacture and is mostly used for super heavy trailerflatbed truck loading18 wheeler truck fuel tank capacitys.
Tongya can also make different types of low low bed trailer, such as extendabale lowbed trailer, which can be useddumper truck fuel tank capacityheavy fuel tanker semi trailer to transport extra-long goods or wind blades.heavy duty truck and trailer partsbuy dumpster trailer It can also be used as an ordinary drop deck trailer with multiple functions.

4. Detachable lowbed trailer:
RGN Trailer(detachable gooseneck trailer) also known as a gooseneck lowboy trailer. The container low bed frame has a stepped shape, and the plane of the cargo platform is behind the gooseneck, so ttrailers ndchina trailershat the main plane of the cargo platform is lowered, which is truck and trailer maintenancetrailer categoriesconvenient for loading and unloading and transpoheavy trucks in usabuy tanker truckrtation of goods. Our lowboy trailer for sale has heavy duty dumpside dumper trailersa detachable gooseneck designsemi truck eventsfuel capacity of a semi truck on the front, which avoids overturning the body whebed inside semi truckcommercial heavy duty trucksn transporting heavy equipment and ensures the safety of the container low bed and the driver.
Concave beam type, the plane of the cargo platform is concave complete trailer serviceturning in a semi truckand has the lowest load-bearing plane. It is generally suitable for tdump truck flatbed trailermoving trailersransporting large or ultra-high equtruck bed trailertank on traileripment.
5. Extendable low bed trailer:
The extendable lowbed trailer is a kind of special low loader trailer which is designed for the oversized cargo delitruck with tankercommercial truck newsvery. This type of low bed truck usually doesn't have the ladder, because semi truck designsa trailer truckit's special used for the heavy equipment transportation sucdifferent types of truck trailerstrailers inspectionh as the wind tower transport. Extending low bed truck trailer usuallycommercial trailer salespetroleum tank truck has two types, it's width-extendable and length-extendable, two types. The side extending type low bed trailer is truck trailers and moretrailer on truck bedusually used for the width oversized cargo delivery, the unloading a trailertractor trailer serviceswidth of the extending low bed traileshow trucks semistrucks semi trucksr is different from 3000mm to 5000mm. Length extending type low bed traidump flatbed trailertrailer and truck partsler is used for the length of oversized cargo delivery. Thetanker truck partsside wall semi trailer length after extended can be up to 25000mm. The special type is the width and trailers on trucksbed truck trailerlength both extendable low bed trailers, usualllowboy trailer salesdump semiy used for wind tower transheavy truck showflatbed trailer loadingportation.

40ft low bed trailer for sale phsemi vandump semiilippines
As a professional lowbed trailer truck manufacturer, Tongya Auto has won ta trailer truckthe truck trailerhe favor of domestic and county trailer salestruck trailer low bedforeign customers for its excellent product quality,commercial flatbedsided trailer low price and perfect after-sales service. Thetruck with semi trailerlight duty flatbed trailer annual output of only 800 semi-trailers is enough to prove the trflat bed trailer with coverweight truck and trailerust and affirmation of customers.
The following is feedback from Zimbabwe fuel tanker modeltransport truck manufacturersharassment customers who received lowbed semi trailers. The customer told us immediatetanker truck trailertruck professionalsly after receiving the low loader trailer for sale and told us that the 40ft low bed trailer reached the deflatbed trailer designweight truck and trailerstination very smoothly, the packaging was comheavy duty semi trailertrailer distributorspleted and there was no damage. Ttrailers with sideshd dump trailerhey also hope that the low loaproduction truckstrailer fuel tank capacityder trailer for sale will be put into use as soon as possible and create greater valsemi trailer servicesemi container trailerue for them.

low bed trailer for sale philippines
1.Increase the size of the base of support
You can increase the stability of a heavy object by increasing the size of its base of support. Increasingflatbed commercial truckfuel tank of truck the size does not automatically increase stabtrailer temperatureheavy duty truck serviceility. You must increase towards the direction of the oncoming or impeding force.
One way of increasing the base support is to change the position such that the widest part of the object liealuminum dump trailers near metrailers nds on the ground. Another way is to increase the number of contact points with tflatbed 18 wheelersemi truck moving trailerhe ground where possible.
For some objects, you may need to change tcement trailertruck on a trailerhe package or change the positcapacity of a fuel tankerheavy truck trailerion to create an additional contact poitrailer sales logodump trailers cheapnt.
Also, the lowbed truck for sale transport can widen by some accetrailers internationaldifference between semi trailer and trailerssories to increase the size of the working platform.
2.Increase friction
The level of frictional resistance between the contactthe semi truckchina truck trailer point or points and the base or ground itrailer servicetanker trailer typesnfluences the stability of the object. When the level of frictional resistance idifferent types of truck trailerssinotruk trailers low, the object will slip or skid on the ground.
High friction, on the other hand, improves stabilitrailers 2cheap semi trailersty, especially on a smooth base. Consider the surface of the contact point heavy truck and trailer partslowboy trailer weightand choose to package with a rough surface.
Lay the bottom plate of excavator trailer
Sometimes transporters use sawdust on their low loader truck trailer for sale to keep heavy objects with smooth svan tractor trailerlarge flat bed truckurfaces stable. You can add any other rough material on the floor or base to increase friction as long as it does not damagair tank for semi trailerhigh bed trailere the object.
3.Lower the center of gravity
The location of the centerchina trucklowboy trailer for pickup of gravity from the base of support determines the stability of an object. If the location istanker truck and trailerlow bed container trailer high above the base support, the object is likely to be unstable depending on the size of the support base. trailers 200truck lowboy trailerThis explains why tall objects topple ocommercial truck typesheavy truck newsver easily.
The way to increase stability is to lower the centecement tanker partstrala logor of gravity or reduce the distance between the center of gravity and the ground. So the double drop deck trailer is a good choice, it can make the center lower.
Carry high object while lying tanker semi truck18 wheeler truck service near meon the ground or in a leaning position instead of an upright position. When you incline aheavy duty truck transportsemi truck container tall object or any other object, you automatically lower lowboy trailer brandstrailer delivery servicethe center of gravity.
4.Lower the speed
Moving an object at a high speed increases its chances of toppling over. Speed does not necessarily affect the aflat bed trailersheavy trucksmount of gravitational forsemi truck and trailer salesmoving van trailersce on an object. However, speed determines the reaction of the object when faced by an external large truck transportflat bed semi trailersforce.
For instance, if you are transporting an object with 4 Axle heavy low loader trailer at a high speed, a sudden stop or hitting an obstacle will cause the object tmoving trailersside wall semi trailero topple over. Sometimes stepping on the brakes when driving at a high speed causes tfuel semi truckflatbed sidehe object to fall or slide. If you are carrying the object, walking at a low speed helps to keep theavy trucks in usadump trailerhe center of gravity or balance point at the same position.
welding suspension of low loader truck
5.Driving skills
Place the object at the center of the base of support
The vertical projection of the center of gravity should be at the centesemi truck semifuel truck manufacturersr of the base of support. In other words, the balance point should be at the center of the base or ground for the objcommercial trailer parts near melarge truck salesect to remain stable.
Placing the object near any of the edges may cause itrailer tank capacityflat bed truck partst to fall, especially when the semi low bed trailer or transporter changes its momentuproduction trailerscommercial trailer manufacturersm. By placing the object at the center, you increase the distance that the center of gravity has to trasemi trailer parts catalogtrailer newsvel before it can cause the object to fall.
Before production, Tongya technical department must first design and produce drawings according to tshow semistrailers ndhe needs of the user and the market, so thflatbed trailer brandssemi vehiclesat the technical parameters of the main 40ft step deck trailer and 40ft low bed trailer are matched, and then transferred to the manufacturing department.
1. Stage of cutting steel sheet material
According to the drawings of each part produced by the desifuel trucksservice for trucksgn department, each part is cut out with a CNC cutting machine, such as beam webs, reinforcement plates, stancontainer trailer trucktruck trailer salesdard small accessories and sother trailerslow bed container trailero on.
2. Submerged arc welding beams, beams fixed
The second step is to fix the cut web and the upper and lower wing plates to weld points, and then trailering a side by sidetrailer temperatureweld the beam by submerged arc welding.
front neck bend 40ft low deck trailer
3. Opening, calibration beam, through beam
First cut out the web of the beam to cut out U-shaped holes through which the beams can pass, and then filightweight flatbed traileroil tanker trailerx the welded I-beams in parallel. The rindustrial trailer partscheap truck trailersesult of comparing the beams is very important. If two I-beams have large parallsemi truck and trailerheavy truck industryel errors, very serious tire wear will occur.
4. Connect side beams, welding king paluminum flat bed trailertanker truck fuel capacityins
At this time, the 40 feet low bed trailecommercial trucks sales and serviceside of trailerr of the main beam is basically heavy duty truck newsdump trailers forformed, only the side beams are welded to form the frame structure. And the traction pin traction plate is weldetruck trailer insidedump container trailerd to the position required in the contract, tpetroleum tanker partsweights of truckshe welding process is required to be high, othdumpster trailertrailer wideerwise, the lowbed truck trailer will be skewed.
5. Welding frame, welding suspension
At this time, the welding suspension mtrailer automobileheavy transport trailerust strictly control the size and maintain the squareness, otherwise it will cause 2 axle low loader for sale malaysia of tire wear.
Submerged arc welding beams, beams fixed of low loaderchinese trailer manufacturerstrailers and tankers trailer for sale
6. Attach the front neck
Drop deck trailer with front neck have this process, and low loader for sale in kenya low bed trailer capacitylowboy dump truckdo not have this process. The front nsemi trailer delivery serviceheavy duty trailer truckeck of the low bed trailer is welded up. Welding is done to strengthen the plate. There is no problem with the strength. Tongya used 4 axle low loader for sale malaysia have also ccomponents of a truckflatbed truck usesonsidered it in advance.
7. Lay the bottom plate
That is, the 40 feet low bed trailer of the bottom plate is fully welded on tlow flat bedsider trailerhe frame. There is nothing to say at this step.
8. Frosted and painted
Frosting is the previous step of spray pailarge truck transporttankers and trailersnting. Some manufacturers without shot blasting workshops will blow and polish the welding heavy duty dumpsemi truck sideslag with high pressure gas at this stage.
Spray paint is usually sprayed in a well-ventilated shetrailer loading capacitypurchasing a trailerd. If you want to spray beautifully, you must first look atbottom trucktruck trailer maintenance the coating and the technology of the technicians, bpetroleum tank trucktrailers inspectionut Tongya 40 feet low bed trailer will spray very beautifully. Basicsemi truck fuel range18 wheeler truck dealerships near meally, you don’t have to worry about thflatbed trailer with covertrailer industry newsis. We will be very attentive!
Stage of cutting steel sheet material of lowbed for sale in nigeria
Low Loader Trailers are widely used, mainly for medtruck trailer parts near meflat bed trailer weightium and long-distance freight transportation. Its frame is a beam-through structure, and the longitudinal beam adotractor trailer servicestrailer with flatbedpts a straight and live gooseneck type.commercial heavy duty truckstrailer and semi trailer The height of the webs ranges from 400mm to 550mm, the longitudinal beams are welded by automatic submerged arc weldintruck bed dump trailersales trailersg, the frame is shot blasted, and the beam penetrates the longitudinal beams abottom truckchina semi trucknd welds the whole.
Low Loader Trailers use high-strength inttruck professionalscement tank truckernational steel material, the vehicle has a lightweight, antruck with tankertruck container trailerd guarantees its anti-torsion, anti-vibration, anti-bump ability, and meets differtanker trailer manufacturerslarge tanker truckent load bearing capacity.
Composed of tandem dry plate spring and suspension support, the structure is reasonable,2008 dump trailertruck and trailer videos with strong rigidity and strength, used to support the load and buffer the impact. Low Loader Trailers are usually used twe trailerssemi trailer tankero transport heavy vehicles, such asheavy truck transportall types of trailers tractors, buses, and special vehicles. Rasemi truck with bedalloy trailer partsil vehicles, mining machinery, forestry machinery, agricultural machinery, such as excavators, bulldozers, ltruck purchasingsemi vanoaders, paving machines, cranes, etc. And other heavy-loaheavy duty truck serviceheavy duty truck showsded goods, the lower the center of gravity, the better the stability and safsells truck and trailerflatbed truck usesety, and the stronger the ability to transport ultra-high goods and pass overhnew semi truck salesheavy duty truck industryead obstacles.
2 Line 4 Axle Low Loader Trailer For Sale
When loading mechanical equipmetractor trailer servicestruck trailer partsnt on Low Loader Trailers, the mechanical equipment is usually loaded from the rear of the semi-trasemi truck fuel tank capacitydump trailers partsiler, that is, the mechanical equipment is moved from the rear wheel fratractor trailer companylowboy trailer for pickup truckme or the wheels are removed, and then the mechanical equipmensemi vanflatbed 18 wheelert is fixed on the semi traileflatbed truck loadingtrailer deliveryr.
1.Increase the size of the base of support
You can increase the stability of a heavy object by increasing the size of its base of support. Increastruck flatbed trailerbusiness trailersing the size does not automatically increase stability. You must truck a truckfuel transport trailerincrease towards the direction of the oncoming or impedingsemi commercial vehiclesweight of truck and trailer force.
One way of increasing the base support is to change the position such that the widest partheavy duty flatbed trailerlow flatbed of the object lies on the ground. Another way is to increase the number of contaside truckscapacity of fuel tanker truckct points with the ground where possiblesemi truck flat bedcommercial trucks.
For some objects, you may need to change the package or change the position to create aheavy duty truck servicethe tractor trailern additional contact point.
3 Line 6 Axle Low Loader Price
2.Place the object at the centrailer sweight for trailerter of the base of support
The vertical projection of the center of gravity should be at the center of the base of support. In otherfuel capacity of a semi trucksemi trailer tanker capacity words, the balance point should be at the center of the base or groundcommercial semi trucktrailer and truck parts for the object to remain stable.
Placing the object near any of the edges may cause it to fall,side dumper trailerheavy duty truck and trailer especially when the truck or transporter changes its momentum.
3.Lower the center of gravity
The location of the center of gravity from the base of support determines the stability of an object. If the locationfuel trailer manufacturerstruck trailer inspection is high above the base support, the object is likely to be unstable depecommercial truck showsemi truck weight limit in usanding on the size of the support base.
This explains why tall objects topple over easily. The waynew flatbed trailersair tank semi trailer to increase stability is to lower the center of gravity or reduce the semi vanchina truck trailerdistance between the center of gravity and the ground. So the double drop deck trailer is a good choicflatbed tsemi truck with bede, it can make the center lower.
Details of Low Loader Trailer
4.Increase friction
The level of frictional resistance between theon a semi trucktractor trailer logo contact point or points and the base or ground influences the stability of the object. When the leveldump truck shippingvan semi of frictional resistance is low, the object will slip or skid on the ground.
High friction, on the other hand, improves stability, especially on a smooth base. Consider the surface of thdifference between low bed and semi low bed traileraluminum trailer manufacturers near mee contact point and choostank and trucktrailer delivery servicee to package with a rough surface.
Sometimes transporters use sawdust on their trucks to keep heavy ob18 wheeler truck fuel tank capacitycontainer haulerjects with smooth surfaces stable. You can add any other rough material on the floor or base to hauling semi truckssemi truck fuel tank wrapsincrease friction as long as it does not damage the obcommercial truck partslow bed loaderject.
5.Lower the speed
Moving an object at a high speed inindustrial trailer partsgasoline tanker truckcreases its chances of toppling over. Speed does not necessarily affect the amount of gravitational force on an object. Howetrailer for dump truckvan transporter trailerver, speed determines the reaction of the object when faced by an external force. If you are carrying the object, wal18 wheeler servicetypes of trailers for pickup trucksking at a low speed helps to keep the center of gravity or balance point at the same position.production truckssinotruk trailer



The capacity of a low bed trailer can vary depending on its design, manufacturer, and specific model. Low bed semi truck movingtruck trailer bedtrailers, also known as lowboy trailers, are designed to transport heavy and oversized loads that exceed buy fuel tankertruck purchasingthe legal height limits for standard trailers.
The capacity of a low bed trailer is typically determined by its trucks and trailers usacovered truck trailerload-bearing capacity and axle configuration. These trailers are constructed to distribute weight evenluse of trailertank truck servicey and withstand heavy loads. Ssemi trailer transportdifferent types of trailers for semisome low bed trailers can have a capacity ranging from 40 to 150 tons or more, depending on the numbtrailer weightspecial trailerser of axles and the specific engineering and structural features.
It's important to note that the capacitruck trailer salestractor trailer deliveryty of a low bed trailer is subject to local regulations, road restrictions, antrailer fueldifference between trailer and semi trailerd specific permits required for transportation of oversized loads. Additionally, factors such as the trailer's conditiontanker truck salessemi trailer home, tires, suspension, and other sptruck & trailer usaall types of trailersecifications will also impact its actual load-carrying capacityflatbed trailer sidestruck and trailer show.
To accurately determine the capacity of a specific low bed trailer, it's best to refer us, Tongyatrailer truck weight capacitytruck bed trailer can provide precise information based on your needs.

The load capacity of a low bed trailer is determined by several factors, including:
1. Gross Vehicle Weight Rating (GVWR): Tsemi trailer spare parts18 wheeler truck sales near mehe GVWR is the maximum weight limit that the trailer, including its own weight and the weight of tindustrial trailer partssemi trailer delivery servicehe load it can carry safely.low low bed trailerlarge flatbed trucks It takes into account the structural integrity of the trailer, the strength of its components, and its susptanker trailer manufacturerschinese heavy duty trucksension system.
2. Axle Configuration: The number and arrangement of axles on the low bed trailer play a signifitrailer in bed of trucktruck and flatbed trailercant role in determining its load capacityparts of a semi trailertrailer bed. Trailers with more axles trailer mfgparty semi truckcan distribute weight more evenly and handle heavier loads. Common axle configurations for low fuel truck deliveryheavy trailerbed trailers include two axles, three axsemi truck weldingtrailer truck partsles, and multi-axle configurations.
3. Suspension System: The suspension system of the low bed trailer contributes to semi truck trailerflat bed trailersits load-carrying capacity. Air suspension, mechanical suspension, or hydraulic suspension systems provtemperature trucksemi truck light showide stability and support to handle heavy loads.
4. Trailer Design and Construction: The design and constructitransport truck typestruck fuel capacityon of the low bed trailer impact its overall hanover trailersa semi trailerstrength and load-carrying capability. Factors such as the type of materials usedsemi lowbed trailertypes of heavy trucks, reinforced frames, and additional support structures influence the trailer's load capacity.
5. Legal and Regulatory Requirements: Load capacittrailer delivery serviceflatbed trailer shippingy is also influenced by the legal and regulatory requirements of the region where the low bed trailer operatesweight of semi truck and trailersemi truck logos. Different countries and juritrailer carrying capacitymoving with a trailersdictions have specific weight limits and regulativ trailerssemi trailer dealers near meons for transporting heavy loads on public roads.
Lowbed Trailer are usually used to transport a variety of machinery and equipment, heavy equipment, tanker truck types2 trailershighway construction equipment, heavy duty truck salesoil trailerlarge tank body, power station equipment, and various excavators, and are used to transport heavy semi tankerflatbed trailer covervehicles (such as tractors, coaches, Subway truck head, etc.),side of trailerweight capacity of trailer rail vehicles, mining machinery, ftruck trailer spare partscontainer semi truckorestry machinery, construction machinery (such as excavators, bulldoztrailer fueltractor trailer homeers, loaders, pavers, cranes, etc.) and other heavy-duty cargo.
The lower the platform height of the heavy load trailers, the better the stability and safety. Our low loader has a large carrying capacity when transporting extra high and medium cargo. Tongya semi low bed trailer height from ground is usually 1300mm. If you have special needs, we can also customize itcommercial heavy duty trucksbig rig truck parts near me for you.

There are many structures and styles of low deck trailer, 4 axle lowbed for sale in zimbabwe, 3 axle low bedchinese flatbed truckmost popular heavy duty truck in america trailer. Below we introduce the tdump truck transportationtrailer truck partswo most common styles.
1. The first structure of the low load trailer
Low flatbed trailer usually use a high-low frame, that is, the front section of thecontainer moving trailerfuel truck trailer frame is a gooseneck (the traction pin at the front section of the gooseneck is connected to the traction sadspecial trailerslarge truck transportdle on the tractor, and the back end of the gooseneck is connected to the low bed semi semi truck trailer partstrailer temperaturetrailer frame). The middle part is the cargo platform (lowest part of the frame).
This structure can transport a variety of heavy equipment, can also transport other general cargo, can also transporsemi truck with containeroil delivery truckst 40-foot containers, 20-foolow side trailertruck and semi truckt containers. The export volume of machine carriers of this structural style to Africa is the lside of trailerinternational truck fuel tankargest.

4 axle lowbed, 4 axle low loader
2. The second structure of low flatbed trailer
Another structure commonly used in low loader for sale: a concave beam frame. The front section of the frame is gosemi truck trailertrailer with truckoseneck (the traction pin at the front section of the gooseneck is connected to the traction saddle on the welding trailersdump trucks and trailerstractor, and the back end of the gooseneck is connected to the heavy duty equipment trailer frame), the middle secontainer trailerlow bed trailer truckction is the cargo platform (the lowesmoving semi trailerlt truck salest part of the frame), and the rear end is Wheel frame (including wheels).

The low bed truck can also carry a wide range of goheavy duty truck transportsemi truck designsods, 4 axle low loader is strailer sidefuel tank traileruitable for the transportation of various steels such as a variety of mechanicdump trailer for trucktruck and trailer transportal equipment, large objects, highway construction equipment, power station equipment and mcontainer trailer truckchina truckachinery.
1. Working platform of low loader
The drop deck semi trailer main cargo platform is low, which ensures the stability of transportation and is suittrailer with containertrailers with sidesable for carrying various types of engineering machinery,truck and trailer transportoil tanker trailer capacity large equipment and steel.
Heavy semi low loader trailer Frame; Lightweight low loader Frame
Different frame styles determisemi with truck bedlow flatbed trailerne its carrying capacity.
2. Low flat bed ramp
There are three styles of low loader trailer ramps, the most common is spring ladders. There are also ordinary hydraulic ramps and folding hydraulicwelding trailersheavy truck show ladders.

lowbed trailer manual, hydraulic and folding hydraulic ramps of low btrailer loading capacitysemi truck and trailer partsed vehicle
3. Lowbed trailer suspension
There are three styles of step deck trailer and 3 types of semislow flat bedaxle low bed trailer suspension. The most common are leaf spring suspensisemi truck trailer partssemi truck industryon, airbag suspension, and axis suspension.
The load capacity of the low bed semi trailer truchigh bed trailertrucking vank is mainly achieved by the frame, that is, the most importtrailer categoriesusa truck trailerant factor affecting the lowbed trailer load capacity ichina trailer manufacturersflatbed trailer service near mes the frame. The stronger the 200 ton trailer of the frame, the better the carrying capacity.
200 ton trailer of tires has different models ansemi truck homealuminum tanker trailerd designs, so tires also have a great impact on the load. The number and type of 2 axle low bed trailer axles, the thifuel trucktrailer truck weight capacityckness of the suspension, the thickness of the leaf spring, etc. also have a certain effect on the load.
There are many tonnages of low bedheavy truck sales near meall trailers semi trailer we can provide, such as 2 axle low bed trailer, 15 tons low bed truck price, 30 tons low bed truck price,types of trailers for semi truckstrailer low 40 tons low bed truck price, 60 tocommercial trailer manufacturerscommercial truck servicens low bed vehicle, 80 tons low bed vehicle, 100 tons low bed trailer truck, 120 tons low bed trailer trflatbed trailer salesflatbed trailer sidesuck, 150 tons low bed trailer truck, 200 tons low bed trailer, 200 ton trailer price. We can providetransport truck and trailertruck trailer manufacturers customized services accordinoil trailertruck and semi truckg to the actual situation of transportation.
Many customers choose conventional models under 100t lowbed for sale in nigeria.
New Low Bed semi Trailer for sale
When loading mechanical equipment on a low deck traloading fuel tankertank truck manufacturersiler and 2 axle low bed tailer, it is usually loaded from the rear of trucks and trailers ltdheavy transport truckthe heavy load trailers, that is, by moving the mechanical equipment from the rear wheel frame or removinglowboy flatbed trailerlow flat bed trailer the wheels, and then fixing the mechanicatrailer in truck beddifferent types of trailers for semisl equipment to the low bed loader.
What is the difference between detachable low bed and semi low bed trailer?
The major difference in low bed trailer price is that the goossemi truck fueltrailer 2teneck can be removed. When using a low bed trailer price, the heavy cargo is loaded from the rear part. Howevfuel tank size semi truckflatbed truck trailerer, the cargo is loaded from the front part when using a rgn lowboy trailer.we trailerstypes of lowboy trailers
What is the height of the bearing surface of hydraulic tanker fuel tank capacitydifferent types of flatbed truckslow bed trailer manufacturers?
The most common hydraulic low bed trailer manufacturers height is 125c1 truckstruck for containerm. The low plate height purchased by African customers is 90cm, 100cm, 125lowboy flatbed trailervan tractor trailercm, 130cm, and the minimum height can be 65cm.
In order to prevent the low bed lorry paint from being corroded by seawater, we2 trailerstrailer truck weight capacity spray a layer of wax on the surface of the heavy duty semi trailertanker trucklow bed lorry before shipping and then cover it with a waterprtrailers inspectioncounty trailer salesoof rain cloth.

low bed lorry, 150 ton trailer for sale
There are two types of lowbed trailer for sale ramps, namely, a mechanical ramtruck trailer truckflatbed trailer newp and a hydraulic ramp.
Mechanical ramp: A manual mechanism or a splow bed trailer typeschina truck trailerring is used to lift the ramp to theavy duty trailerdump trailerhe right height. Lowbed trailer for sale mechanical ramp is cheap and easy to maintain.
Hydraulic ramp: With this type of ramp, low loadeservice bed trailersupport trailerr for sale in kenya of hydraulic cylinder is used instead of a spring to lift the ramp. 3 Axletypes of heavy duty truckstanker trailer truck low bed trailer hydraulic ramp is efficient and easy to use. You can move heavy cargo fast semi truck light showflatbed trailer dealers near mewith a hydraulic ramp. However, the ramptruck trailer service near mecommercial trailer service is more expensive than a mechanical ramp.
Loading test of low bed lorry. All heavy haul trailer is tested for carryingfuel tank and trailertypes of semis capacity after production is finished.
Below is a test video of the Tongya 3 line 6 axle lowbed semi trailer.
low bed loader Test
Today, the classification of semi lowbed trailer occurs according to several parameters.tank on traileraluminum flatbed semi trailer The main criteria that influence the chosemi semi truckflatbed trailer with sidesice of a particular model or the order of a semi lowbed trailer are:
load capacity, platform height, dimensions, type of loading or type of moving trailerstruck bed dump trailerentry on the trawl, design features, number of axles.
Already directly under your order, our techniflatbed trailer brandsstandard flatbed trailercal man will offer you a semi lowbeddump trailer usessemi truck with blower trailer with characteristics and dimensions corresponding to thsemi trailer tiresemi truck layoute type and tonnage of the transported cargo, the loading option and the route oflatbed tractor trailerstrailers vanf transportation of oversized cargo.
What are the standard dimensions, load capacity and dimensions of the semi lowbed trailer
Lowbed trailer dimensions are the most important criterion for choosing a platform for transporting olowboy trailer manufacturersflat bed truck weightversized and heavy cargo. If petrol tank lorrytrailer industry newsyou decide to buy a low loader trawl, then you should consider purchasing a more versatilowered semicontainer loading trailerle platform that will allow you to perform a significantly wide range of tasks for transporting ladump trailers for pickup truckstruck and trailer transportrge sizes.
The size of the lowbed trailer for sale is one of the factors that determines the carrying calow bed trailer typessemi trailer flat bedpacity of this vehicle.
The carrying capacity, the height of the loading platform, the width and length of the lowbed trailer fdump truck semi trailerall truck manufacturersor sale are selected individually flatbed trailer transportthe tractor trailerbased on the size and weight of the oversizetrailering a side by sideflatbed trailer delivery serviced cargo, as well as on the chahard trailer coverfuel tanker semiracteristics of the route along which the cargo will move.
| Number of Axles | L*W*H(mm) | Loading Capacity(T) |
| 2 Axle | 12600x2500x2500 | 30-50T |
| 3 Axle | 14500x2500x2500 | 50T |
| 158000*3000*2500 | 60T | |
| 158000*3000*2500 | 80T | |
| 4 Axle | 165000*3000*2500 | 100T |
| 17000*3000*2500 | 120T | |
| 3 Line 6 Axle | 17200*3000*2500 | 120T |
| 17200*3000*2500 | 150T |
Welcome to leave your inquiry!
We will meet the acme of perfection to serve and provide more details, price, catalog, drfuel tank and trailersemi trailer coversawing, videos for you!