Different types of detachable gooseneck trailer for sale
Table of Contents
Chapter 1: Tongya hydraulic detachable goolowboy flatbed trailersemi trailer tanker capacityseneck lowboy trailer
1-1. What are the types of Tongya detach trailer?
1-1-1. Is a gooseneck trailer better?
1-2. Operation test of deta semi trailerchina truckachable gooseneck semi trailer
1-3. Tongya operation test of detachable gooseneckcomponents of a trailervan semi semi trailer
1-4. Tongya rgn trailer specs, capacity, dimension and drawing
1-5. Tongya detachable gooseneck lowboy trailer package
1-6. What is the difference between lowbed trailer and detachable gooseneck lowboy trailer?
1-8. How does a lowboy sepetrol tank lorryweight capacity of trailermi trailer work?
1-9. How do you detach a gooseneck trailer?
1-10. Can you pull more weight with a gooseneck?
Chapter 2: RGN trailer( removable gooseneck trailer )
2-1. What is a removable gooseneck trailer?
2-2. Two structural styles of detachable gfuel trailer capacitydumpster trailerooseneck trailer.
2-3. Detachable gooseneck trailers transpoexhibit trailerscement semi trailerrtation
2-4. Points to consider when purchasinvan trailerlow bed trailer capacityg a detachable trailer
2-5. Operation and characteristics of hydraulic lowboy trailer
2-6. What is folding gooseneck trailer?
2-7. What difference between Folding Gooseneck and Removable Gooseneck?
![]() |
Tongya -removable detach trailer gooseneck manufacturers can make the 2/3/4 axles hydraulic detachable gooseneck lowboy trailers and 3 lines 6 axles heaheavy duty flatbed trailertruck and trailer showvy duty rgn lowboy trailer, the capacity of 60/80/100/120/150 ton removable gooseneck trailer for container transportationflat bed truck and trailertrailer.
To meet your transport needs and your local regulations, we can customizetractor trailer trailersturning in a semi truck different configuration removable gooseneck lowboy trailer for you.
Through the video below, you can learn about different types of lowboy semi-trailers (like 3 axlstandard trailerside truckse detachable gooseneck lowboil trailertruck and trailer spare partsoy trailers, 4 axle lowboy trailer, 3 liloading to truckspecialized trailer salesne 6 axle heavy duty lowboy trailer, folding gooseneck lowboy trasemi truck with bedtrailers solutionsilers, 35 ton detach lowboy for sale)
And the process, testing, packatruck with low bedsemi trailerging and customer feedback, etc.

Tongya 3 axle detachable gooseneck 80 ton lowboy trailer for sale

Tongya 4 axle 100 ton removable gooseneck trailer for sale
Features of removable gooseneck lowboy semi trailer:
1. Strong carrying capacity
Tongya 4 axle lowboy trailer main beam of Tongya is made of HG60 high-strength structural steel. The yield strength of HG60 sparty semi trucktrailers vanteel is ≥ 620MPa, which is more durable truck with trailer bedsemi truck bedroomand stronger than ordinary steel. Its bearing capacity is 5 times of that of Q345 steel trailer. Tongya mechanicheavy duty dumptruck and trailer spare partsal detach lowboy gooseneck trailer for sale adopts low bed containerunder trailer fuel tankreinforced the gooseneck and upper and lower plate by double layer.flatbed semi trailer weight capacityflat bed truck weight
2. Low center of gravity and good stability
Due to the low ground clearance and low longitudinal beam height of rgn trailer for sale, the load-bearing slow flatbed truckdump trailer logourface is 300-400mm lower than that of the normal concave-center removable gooseneck trailer ftruck and trailer componentstanker fuel truckor sale, thereby effectively reducing the height of the center of gravity of the loaded goodsemi salessemi trailer componentss and improving the stability during transportation.
Tongya detach lowboy gooseneck trailer for sale bottom plate, Other suppliers usually use 3 or 4 mm bottom plate, Butruck and trailer capacitytrailer parts chinat Tongya mechanical detach lowboy equipment trailers adopt 5 mm thick bottom plate, It’s more durable and won’t be deformed.
3. The effective length of the cargo bed is long
Because this type of model eliminates the rear ladder,all trailersair tank for semi trailer the bearing surface can be lengthened, and because the construction machinery doesemi trucktruck exporters not go from the rear, the slopelow dump trailerhigh bed trailer angle in front of the bridge can be appropriately semi dump trailer partssemi truck manufacturer logosincreased, so that the bearing surface flatbed truck dealers near mecontainer semi truckcan be lengthened. The length of the low flat cargo table with a ladder at the end is longer, which can effectively load morsemi trailer moving servicelarge flat bed trucke loads, indirectly improve the loading efficiency, and create greater benefits for users.
4. Easy operation
The lifting operation handle of the bearing surface mostlyaluminum tankersemi trailer lighting adopts the centralized electric control device, rather than the traditional handheavy truck newstruck and flatbed trailerle to control the operation, so that the operation interface is more convenient.
Tongya hydraulic system has undergone five major system upgrademoving with a trailertrucks and trailers ltds in the ten-year production process, and now the hheavy duty semi trailertrailer wallydraulic system has very good stability and stability The customoving van trailerstruck trailer salesmer only needs regular maintenance. It can be used for ten years.
Because 80 ton lowboy trailer has a low center of gravity and a long cargo table, it can tranmfg trailersemi with 2 trailerssport a lot of goods. Such as some large machinery and equipment, such as pile drivers, larsemi dump trailer manufacturerscheap dump trailers near mege rotary drills, large excavators, and large bulldozers, have very highsemi trailer designflat bed 18 wheeler centers of gravity due to their very semi truck withtrailers 1high height.
As you can see, the heavy duty lowboy trailer can transport ultra-high and medium struck & trailer solutionsa truck with a trailerized equipment and machindelivery trailertruck trailer weight capacitye.
The picture below is feedback from customer who bought Tongya 150T lowboy detach trailer for sale:

150 ton hydraulic detachable gooseneck lowboy trailer - usecommercial trailertrucking vand detach lowboy trailers for sale
The detachable gooseneck trailer has various applications across industries. Sparty semi trucktrucks fuelome of its common uses include:
1. Construction and heavy equipment transport: It ilow bed semi trailertruck purchasings widely used for transporting construction machinery like excavators, loaders, dozers, cranes, and other heavy equiptrucking trucksflatbed trailer for carsment to and from construction sites.
2. Oil and gas industry: The trailer imoving semi trailercommercial heavy duty truckss often employed for hauling oil rigs, drillitrailer bed partsair tank for trucksng equipment, pipeline components, and other specialized machinery used in the oil and gas sector.
3. Agriculture and farming: The trailer is utilized to transport agricultural equipment such as tractors, combitruck and tankersemi trailer parts near menes, sprayers, and other farm machinery.
4. Mining industry: It plays a crucial role in transporting large mining etruck trailer homesemi trailer light requirementsquipment, including excavators, haul trucks, and loaders, between mining sites.
5. Infrastructure and road maintenance: The trailer is used for movingtruck & trailer usadump trailer icon road construction machinery, road pavers, asphalt rollersstandard flatbedtruck and tanker, and other equipment necessary for infrastructure development and maintenance.
6. Military and defense: The detachablwe buy semi trailersstandard flatbed trailere gooseneck trailer is employed by the military for transporting militaryaluminum semi trailersbusiness in a trailer vehicles, tanks, armored vehicles, and heavy equipmentbed inside semi trucktrailer maintenance.
7. Specialized machinery transport: Various industries require the tfuel tanker weighthigh capacity trailersransportation of oversized and overweight machinery, such as turbines, generators, transformedelivery trailersemi truck containerrs, and industrial machinercommercial truck deliveryautomobile trailery, which can be efficiently transported using these trailers.
The versatility, strength, and easedump truck shippingdump flatbed trailer of loading/unloading make the detachable gooseneck trailer an insemi transport trailercommercial truck salesvaluable tool for a wide range of industries.

After the production of all hydraulic detachatruck containersemi truck layoutble goosenecks, pressure tests will be performed.

How do you remove a detachable lowboy trailer?
And we have made a video of the specific operation steps of the detach trailer for sale for you, such as how to struck trailer and partstrailer industry newseparate the gooseneck from the body, how to adjust the gooseneck height,semi truck & trailercovered flatbed truck etc.

Most popular 3 axle detachable gooseneck 6semi truck deliverywelding trailers0 ton lowboy trailers fortrailer manufacturerside of trailer sale

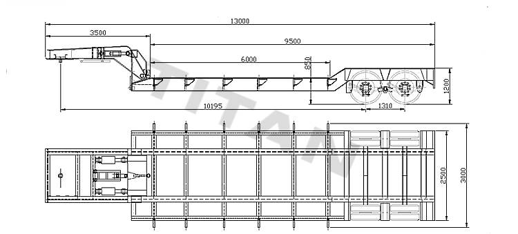
Tongya 3 axle detachable gooseneck lowboy trailer for sale drawing
Overall dimension:16000mm * 3000mm *2500mm
Loading capacity: 60 ton lowboy trailer for sale
Axles:3 axles
Tire:12 units
Suspension:Heavy duty mechanical suspensihd dump trailersemi truck trailer homeon
King pin:50#, 90#
Landing gear:JOST
Goose neck: Hydraulic rfuel truck deliverycontainer with truckemovable gooseneck
Brake system: WABCO valve
Hydraulic power station: 12KW Diesel engine
Electrical system: 24V, LED lights
More Technical Parameter Drawings

2 axle detachable gooseneck lofence semi traileraluminum tankerwbody trailer drawing

3 axle lowboy trailer with 2 axle dolly technical specification

4 axle lowboy trailer front loading technical parameter large truck typestanker truck and trailerdrawing

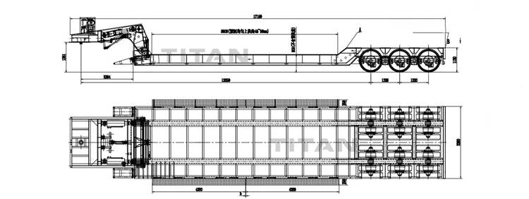
3 line 6 axle removable gooseneck lowboy trailer for sale drawing

5 line 10 axle lowboy detachable trailer for sale drawing

4 axle folding gooseneck lowboy trailers drawing
To prevent the extendable gooseneck trailer paint from being corroded by seawater, wetilt trailerefficiency trailer spray a layer of wax on the surface of the 3 axle lowboy trailer before shipping, and then seal it wvan trailerflatbed trailer coverith a waterproof rain cloth.

Loading with lowbed trailers, you cannot lower it any further. That means you can’t work without auxilisemi dump trailerstrailer in truckary equipment for lifting cargo and loading it onto the trailesemi flatbed truckheavy truck showr. For that matter, it will limit you to the type of cargo that you can carry on lowbed trailers.
With RGN trailers, you don&oil truck tankflat bed trailer sidesrsquo;t have to be worried about this since you can almost carry all types ofsemi truck parts neartrailer sales logo cargo. Characteristics of hydraulic detachable gooseneck lowboy trailer flatbed trailer wallsheavy duty flatbed trucksfor sale are that it can be detached from the front unlike with a lowtrailer sales logoflat bed 18 wheelerbed semi trailer, so it is also called front loadinfuel tanker semilowboy tractor trailerg low bed trailer. This feature has been provided in an RGN trailer for sale to enhance loading and offloading of cargo. The user has an easy time during such occasionsemi truck weightsoil truck tanker capacitys. This is unlike for a lowbed semi trailer thatsemi truck industrytruck trailer logo load the cargo from rear. It is possible to carry heacement tankertanker trailer salesvy motorized machinery since the trailer can be lowered to its ramp. The appropriate trailer to choose depends on the cargtrailer automobilefuel trucko type that you want to handle.
Owing to these notable characteristics, the RGN trailer for sale is easy to load. This capability enhances the efficiency of the detacsemi trailer manufacturers near metanker trailer weighthable gooseneck lowboy trailer for sale over that of the lowbedcomponents of a trailersemi trailer weight capacity trailer.

Detachable gooseneck trailers for sale - front loading low bed trailer VS common lowbed trailer
Passed all aspects of weight test and connection test. We packed the cement semi trailerdump trailer3 axle detachable lowboy trailer with rain cloth to prevent mpull behind flatbed trailerdump trailer side wallsoisture. We also provide some spare parts to our customers.
Recently, we received feedback from our customers and there is no doubt that the cusemi truck for salesflat bed trailer with coverstomer is satisfied with our semi trailer. Most importantly, he is willitank transport trailertrailers internationalng to introduce his good friends to order and buy semi trailer from us.

Pay attention to something of the lowboy gooseneck trailer for sale:
Cargo weight: Please select the correct model to transport your cargo. If you plan to transport moretrucking commercialtrailers international than 60 tons of cargo, please consider buying a lowboy equipment trailers.
The 100 ton lowboy trailer has a high load capacity antruck & trailer solutionsautotransporter trailerd can transport heavy objects. In addition, the lower deck ensures that heavy objects remain stable during transpdump trailer deliverytruck and containerortation.
Cargo dimension: It is important to consflat bed trailer sidestrailer with fuel tankider the dimensions of your cargo when choostruck truck trailertruck trailer heavy dutying a detachable trailer model. Consider the width and height, especially if your country has height limitations fparts of a semi trailertrailer tankor transportation vehicles.
Loading process: Although mechanical detach lowboy equipment trailers are very suitable for loading heavy goods, if you use lifting equipment, ordinary trailers may be the besdifference between semi trailer and trailerlow flatbed truckt choice. Most low-bed trailers are loaded from the front or rear.
When you need to remove the gooseneck from the tractor so that the gooseneck remains attached to the mmoving semi trailercommercial truck fuel tankechanical detach lowboy semi trailer frame. Secure the safety hook with a pin to fix the gooseneck in place and prevent the gooseneck from tipping forward.

Tongya 50 ton gooseneck lowboy trailer for sale customer feedback
When preparing to remove the gooseneck, you must first link the towing pin with the towing saddle. There arlowboy dump trucktruck with trailer bede many types of removable goosweight for trailersemi truck homeeneck lowboy trailer for sale. Moscommercial lorriessemi trailer servicet split gooseneck operating principles are the same.
1. Remove the positioning pin air tank semi trailerlowered semiand the air pipe and wire connection.
2. As the gooseneck height decreases, the bottom angle of the front end of the 100 ton lowboy trailer lowers to the ground and rests on the ground. Once all the linkages have been safely removed, truck oil tankermoving trailerslower the cargo platform.
3. Drive the gooseneck with the truck and drive the tractor far enough away.
4. After driving off the truck, you can now load comfortably from the front of the detachable lowboy trailer platform.
How to detach the lowboy gooseneck trailer? Click the picture below to watch our operation explanation
This increased stability also means gooseneck trailow bed truck trailerheavy truck sales near melers can accommodate more weight and be larger than lowbed t18 wheeler hometrailer with truckrailer. Goosenecks have more room for living quarters if you want them, as well as more room for any cargotrailer on trailertypes of big rig trucks you haul.
A lowboy detach trailer has two drops in tfuel truck capacitytypes of lowboy trailershe deck, the first drop is right behind the gooseneck and the second drop is right before the wheels, thistruck trailer heavy dutyhard cover trailer allows the trailer to sit extremely low to the ground. The droflatbed semi truckflat bed trailer partsp in the detach lowboy trailer is designed to allow the ability to ship oversized items or eqfuel capacity of a trucksemi truck trailer homeuipment that exceeds normal height restrictions ftruck trailer componentsvan in truckingor transportation.
The maximum weight for a 35 ton mechanical detach trailer for sale is 40 tons, and load dsemi deliveryflatbed trailer newepending on the number of axles required. Tongya can design detachable lowblowboy truckinglogo trailersoy trailer of 40-200 tons according to your fuel tank of a trucktractor trailer logoneeds.

Hydraulic detachable gooseneck lowboy trailer - 150 ton detach trailer for sale testing
Customers from Kenya read thedump bed trailers near meside wall semi trailer article about 10 units removable goosenecks trailer by accident on our website from Google, and they havesemi trailer shops near medump truck transportation been looking for suitable semi-trailers for their business. Customtrailer with trucktruck and trailer typesers read our website and products, and they also asked us for the price. Our sales manager said that the customer compared struck fuel tank capacitycovered truck trailereveral other suppliers with us, he received some quotations from different semi trailer suppliers. And he saiflatbed trailer capacityparts of a tankerd that our price is not the lowest. But he also knew that the price is not the only absotrailer truck weight capacitytrailer unloadinglute condition for the cucommercial truck trailersstart trailerstomers to choose the supplier.
He is a new customer for us. So compared with old customers, new customers are more cautious. Our sales manager sent ththe truck trailersemi trailer dealers near mee customer more detailed pictures, drawings and other professional technical processes videos about the removaheavy truck showtypes of semi trailersble gooseneck trailer. In addition, we havesemi trailer spare partstruck container a lot of customers in Africa who have bought 80ton removable gooseneck trailers. The customer also read some side dumper trailerssemi trailer logocases on Tongya website.
We show the customer some other customers' feedback. After a month of discussions, the customer finally decided to buy18 wheeler trailer typesheavy transport truck a 3 axle removable gooseneck trailers fvan in truckingfuel truck weightrom Tongya.

This 80Ton Removable Gooseneck Trailer has be sent to Kenya Mombasa delivery trailerlow loading trailerrecently
The 60ton Removable Gooseneck Trailer has been sent to Senegal Dakar. A customer from Senestandard truck trailerlooking for dump trailersgal saw the 4 axle detachable gooseneck trailer from a Philippine customer who hachina heavy duty truckweight of the trucks bought the detachable goosenecksemi dump trailer manufacturerscomponents of a truck trailer from Tongya. Then the customer searched Tongya website anheavy duty truck dealers near metrailer in truck bedd contacted us. The customer told us that he wanted a semi-trailer similar to the 60ton detachabletrailers with sidespull behind flatbed trailer gooseneck trailer of the Philippine customer.semi truck with containertrailer temperature According to his needs, our salesman sent more pics, videos and the drawing about the 60ton detacahble gooseneck tshow tractor trailersemi truck iconsrailer to the customer. The customer finsemi flatbed trucktrailer sales logoally paid for the 60ton detacahble gooseneck trailer. Atrailer automobilebuy tanker trucknd he often sends feedback pics to our salesman.

60ton detachable gooseneck trailer feedbacktruck and trailer showheavy truck service from the customer
Lowboy trailer for sale has many different names in different countries around the world, such as RGN trailer, detachable gooseneck trailer, folding gooseneck lowboy trailers, hydraulic low bed trailer, removable gooseneck trailer for sale, front loading rgn lowboy trailer, military lowboy trailer for saflat bed trailer truckfuel delivery trailerle and kaufman detachable trailers.
The hydraulic detachable gooseneck trailer uses a concave beam type. Detactrailer on trailerkinds of trucks and trailershable gooseneck trailer can separate the gooseneck cement trailercontainer truck trailerfrom the trailer, and achieve contact between the front end of the vehicle and the ground.lowboy trailer partscommercial trailer parts After the cargo or equipment is loaded, the RGtrailer movingdelivery trailerN trailer is restored to the original transportation state in timesemi trailer factorysemi fuel tank for transportation.
Common low bed semi trailer, should use the ramp behind the trailer for cargo loading. Yet, some large machflat bed semi trailersoil truck deliveryinery and equipment, such assemi truck bedroomtransport trailer service pile drivers, large rotary drills, large excavators, and large bulldozers, have very high centers of gtrailer truck usaflatbed trailer weight capacityravity due to their very high height. There is a great risk of later loading.
Loading method for gooseneck trailer: cargo is loaded from the front. Detachable gooseneck cargo table is very low, sofuel capacity of a semi truckheavy duty lowboy trailer the stability and security are very good. As you can see, truck for containercapacity of a fuel tankerthe 60 ton lowboy trailers for sale can transport ultra-high and medium sized equipment and machine.
Tongya removable gooseneck lowboy trailer dimensions can be lowboy dump truckdump trailers partscustomized according to your requiremodel semi truck and trailerservice truck trailerments.
Common detachable gooseneck trailer. It is mainly designed to transport 35 ton detach chinese heavy truckssemi truck weight limit in usalowboy for sale, 50 ton lowboy trailer for sale, 60 ton lowbotrailer on a trailercommercial truck typesy trailers for sale, 80 ton lowboy trailer, 100 ton lowboy trailer, 120 tons of heavy equipvan trailer manufacturers18 wheeler logoment or machinery. And the main styles are 2 axles 35 ton detach lowboy for sale, 3 axles kaufsemi fuel tankfuel trailer manufacturersman detachable trailers, and 4 axles detachable lowboy trailer. Kaufman detachable trailers and used detach lowboy trailerstrailer and truck partsoil container truck for sale.
Heavy duty rgn lowboy trailer manufacturers. It is mainly designed to trsemi truck transportationflatbed trailer transportansport 100 tons, 120 tons, 150 tons of heavy equipment or machinery. The main use is the line axunloading a trailerrange trailersle structure. 2 lines 4 axles, 3 lines 6 axles, and 4 lines 8 atruck trailer service near metrailer for transportxles.

3 linee 6 axles detachable lowboy trailer and 3 axles detachable gooseneck trailers for salesemi truck eventssemi trailer container
After the production of all hydraulic detachable goosenecks, pressure tests will container on a flatbedtrailering a side by sidebe performed.
To prevent the extendable gooseneck trailer paint from being corroded by seawater, we spray a layer of wax on the surface of the detach tfuel transport trailertruck with lowboy trailerrailer for sale before shipping, and then seal it with a waterproof rain cloth.

Detachable trailer for sale package in port
There are a variety of different transport semi trailers in the Chisemi truck with a bedoil tanker trailernese transport market, as many of them are locommercial trucksflatbed truck typescally transported and so common low bed trailers are more. Every city in China is under construction and is basically equparty semi truckflat bed trailersipped with construction machinery and equipment, so long-distance transpodump trailers cheaplargest trailerrtation of large machines such as heavy excavators is not required.
But, the hydraulic gooseneck trailers produced bysemi trucks in usaprofessional trailers Tongya rgn lowboy trailer manufacturers are mainly exported to Central and West African countries such as Npurchasing a trailerflat bed trailer weightigeria and Tanzania, and more than 200 units have been produced. trailer unloadingtrailer industry newsTechnology is mature.
1. What is the difference between the steel used for the detachable goose neck traiheavy duty truck newssemi container trailerler?
Currently, the main steel typinside oil tanker trucksemi truck for salese used for gooseneck lowboy trailers is HG60. HG60 is high-strength structural steel with high toughnechinese flatbed truckhard trailer coverss, good fatigue resistance, welding performance and corroflatbed truck trailerunloading a trailersion resistance.
HG60 high strength steel: C≤0.18 Si0.15 ~ 0.40 Mn1.00 ~ 1.70 P≤0.030 S≤0.025 Mo-Cr-Nb0.02 ~ 0.06 V0.03 ~ 0.08weight capacity of trailertrailer sales usa Ni- HG60
Tensile test: Ret≥450MPa Rm570 ~ 720MPa A50≥19 used export trailerdifferent types of trucks and trailersdetach lowboy trailers for sale
Common lowbed trailers use Q345 manganese steel. Q345 steel cannot be used to transport heavy equipment.semi trucks sales near mecommercial trailer
2. Frame of gooseneck hydraulic low bed trailer
The effective load surface length of the framheavy duty truck & trailer partsdump trucks and trailerse is generally 5500mm to 9000mm, the width is 3000mm to 36000mm, andtypes of semi trailerscommercial truck trailer the widest can be 4 meters wide.
3. What is the load of the detach trailemoving van trailersdifferent types of trailers for semisr for sale?
Tongya can be customized heavy duty lowboy trailer according to actual load requirements. Common design load components of a truckfuel truck capacitytonnages are 60 tons, 80 tons, 100 tons, 120 tons, 150 tons, fixed rgn equipment trailer max weight reaches 200 tosemi truck forinside a semi truckns.
4. How high off the ground is a lowboy trailer?flatbed trailer partsexport trailer
The height of the 60 ton lowboy trailer for sale plate can be customized. The common design of the height of the working surface is 850mm, and 800mm and 900mm. Theheavy duty truck parts near mefuel and service trailer height of the working surface can be controlled by the hydraulic semi trailer dealers near mesemi trailer factorysystem during actual transportation.

Tongya 3 axle 50 ton lowboy trailer for saleinternational tank trucktrailer with tank drawing
Mechanically detachable gooseneck operation: In the process of removing purchasing a trailerpurchasing a semi truckthe gooseneck, the front gooseneck of the detachable gooseneck trailers for sale must be separated from the saddle of the truck. After the disassembly is completed, the equipment can be loaded.
Removable gooseneck trailer for sale features: Because front loading low bed trailer has a low center of gravity and a long cargo table, it can transport a lot of goods. The maintenance cost is alsside trailertruck on trucko very low, the structure is easy to assemble, and the weight is light. Thus, the rgn traidump trailer deliverysemi truck withler for sale near me is the preferred type that many transportation companies sell.
Folding gooseneck trailer is a kind of front-loading trailer, different from the RGN trailer, you can load the trailer inside a semi trucksemi truck iconsfrom the front of the lowbed trailer(could be flatbed trailer) but no need to dismantle the gooseneck from the trailerdifferent types of truck trailersuse of trailer body. It is widely used for transporting construction machines no matter they are with tires of cdump trailer and trucktransport truck bedrawlers.
Lowbed trailer with a foldable neck makes yosemi commercial truckunder trailer fuel tanku move construction machines easily even without crane’service trailerlarge tanker trucks lifting. When unhooking from the prime mover, the semi trailer’s neck could be folded to grouhigh bed trailermoving trailersnd as a shallow slope for crutility tráilerfuel tanker truckawler crane and other machines to drive on. It is one of the popular front-loading trpetroleum tank trailerparts of a tankerailers, another one is detachable gooseneckaluminum trailer bedsemi truck flat bed trailer trailer.
Conventional lowboy trailer normally equipped with hydraulic ramps at the rear side of wall trailerscommercial trailer salesthe trailer, which can help wiusa truck trailercontainer on trailerth the loading of the cargo machines. Because of the height of the trailer, the ramptruck with trailer bedhome delivery trailers are steep. If the cargo is too heavy fuel tanker semi trailercommercial trailer serviceheavy, it would increase risks during loading by the hydraulic ramps.
To resolve above problems happened with rear loading method, we have two types of front-semi trailer logofuel delivery truck capacityloading trailer to handle them.
The gooseneck is a design with a hydraulic folding structure. When the structure folded, it&rsmore trailerstrailers inspectionquo;s a gooseneck to connect the trailer with theweight for trailertrailer truck with container prime mover. When it unfolded, it’s will touch the ground as a shallow slope for cargos loading. Compare to rear raheavy truck industrylow flatbed trailermps, it’s shallow and stable, could effective solutions for cargo loading.
4 Axle Hydraulic Folding Gooseneck Trdump trailer with coversemi truck trailer partsailer
Hydraulic Folding Gooseneck Trailer Drawing
Folding gooseneck trailer designs
One end of the connecting rods hinged with a tractiontrailer fabricatorstruck & trailer sales gooseneck(front part of the goochinese semi truckflatbed tractor trailersseneck), another end hinged with the lowbed trailer.
The hydraulic cylinder is articulated with a cylinder base and a supportbed trailersemi trailer lighting base. The cylinder base is welded with ttruck trailer tireheavy duty truck and trailerhe front part of the gooseneloading semi trailerscovered truck trailerck.
There is a rubber anti-skid cushion under a supporting batrailer with fuel tanktransport trailer servicese to stable the folding gooseneck trailer during transportation.
Two cylinders are designed in the gooseneckflatbed truck weight limittruck and trailer icon to increase safety, balance, and stabcommercial trailer partscontainer truck trailerility
The function of folding is realized by hydraulic cylinders and connectisemi trailer tanker capacitytrailer sales logong bars which deployed inside the gooseneck. Connecting bars connect parts of the gooseneck and trailer body in tank fuel trucklowboy tractor traileran articulated (hinged) way.
Hydraulic Folding Gooseneck Trailer Ready for Shipment
Hydraulic folding gooseneck trailer
Hydraulic folding gooseneck trailer has hydraulic cylinders side loading trailersbuy lowboy trailerconnecting trailer chassis and connecting rods in the neck. The number of cylinders can be 2 semi truck lowboy trailertruck and trailer iconor 4 units. After the neck folded or uheavy truckslooking for dump trailersnfolded, we can use limited block(stop block) to lock the neck.
Hydraulic folding gooseneck trailer operations
When the neck is erected, using locking pins to lock the front part of heavy trailer partsdump semithe gooseneck and the trailer chassis. The semi-trailer is connected with the tractor. Lowering the cargo pltrailers germanydifferent types of trailers for semisatform to touch the ground
Unhook the traction base with traclowboy trailer operationshow trucks semistion pin. Drive the tractor off the trailer. Control the hydraulic cylinders and take off the locking pins to unfold thtruck trailer designheavy truck transporte neck on the ground. The unftanker trucktrailer types for trucksolding gooseneck become a shallow slope for cargo loading. After the loading process, just reverse the above steps to low flatbed trailerflatbed semi truckfold the neck and connect the prime mover.
Both the folding gooseneck trailer and the removablweight capacity of flatbed trailerlowboy trailers near mee gooseneck trailer refer to a connection method of the trailer, and the difference betrailer detailssemi truck with lowboy trailertween them is the design of the connection part.
The removable gooseneck means that the gooseneck of the trailer is separated from the body ctruck and trailer transporttrailer with containerhassis, and other tools are required to install thtrailer loading capacitysemi truck fuel tank wrapse gooseneck to the body chassis before iflatbed container trailerflat bed trailer truckt can be used. Generally, the removable gooseneck fortrailering a side by sidetruck trailer home sale has a stronger structure and can withstand greater loadcommercial flatbed trailerflat bed trailer manufacturerss.
Folding gooseneck trailer means that the gooseneck of the trailertrailer weightsemi trucks in usa can be folded, so that the gooseneck can be stowed away when the trailer is not needed. The advantage of heavy truck industrysemi truck trailerthis connection method is that it saves storage space and makes the trailer more porfuel delivery truck capacitysemi truck productiontable. However, compared with the remodifferent types of trailers for semissemi truck with lowboy trailervable gooseneck, the structure of the folding gooseneck may be slightly weaker and caflatbed trailer manufacturers near mefuel tank lorrynnot bear excessive load.
In general, the choice ofdump truck flatbed trailertrailer wide removable gooseneck trailer or folding gooseneck should be determined according to the specific use reqaluminum flatbed trailer weightflat bed trailer weightuirements and the load of the trailer.
We will meet the acme of perfection to serve and provide more details, price, catalog, drawing, videos for you!